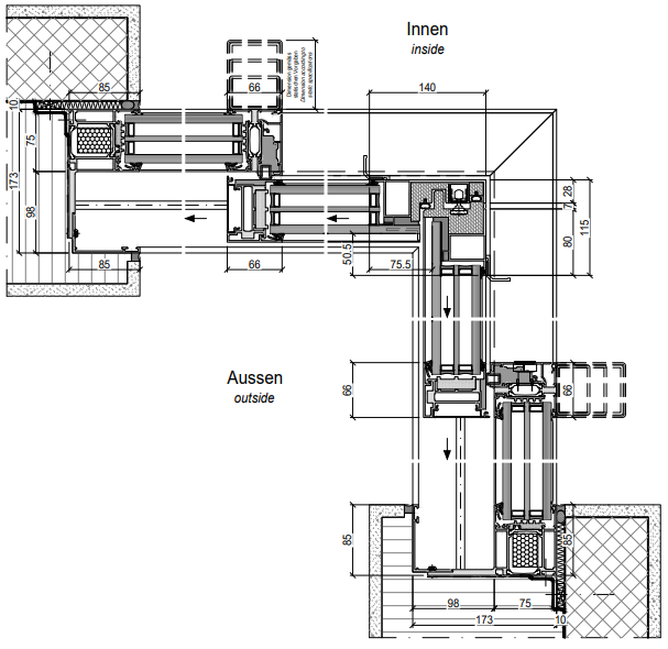
Schema C 1.2

Vertikalschnitt
Ansicht
Horizontalschnitt

Schema C 1.2

Zubehör

Motorisierung

Bodenklappe

Anbindung Hausleitsystem

Einbruchschutz RC2/RC3

Oberfläche

Aussengriff

Ganzglas

Alarmpaket

Indirekte Lüftung

Spaltlüftung

Connect

Maritim

Absturzsicherung

Schwellenschlitten

Insektenschutz

Zubehör

Sliding Windows Motorization Air Lux

Motorisierung

20230223 air-lux Roggwil 23

Bodenklappe

Connection to building management system

Anbindung Hausleitsystem

Burglary protection

Einbruchschutz RC2/RC3

Surface

Oberfläche

20230503 AirLux REDUZIERT 6

Aussengriff

Image3

Ganzglas

Alarm package

Alarmpaket

111

Indirekte Lüftung

Gap ventilation

Spaltlüftung

Goldbacherstrasse 90 In Kuesnacht, air-lux, architecture, construction bronze, windows

Connect

Luxury beach house with sea view, swimming pool and terrace in modern design.

Maritim

Suche